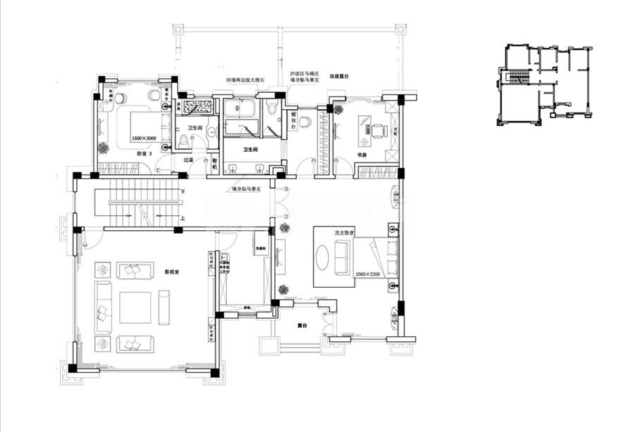
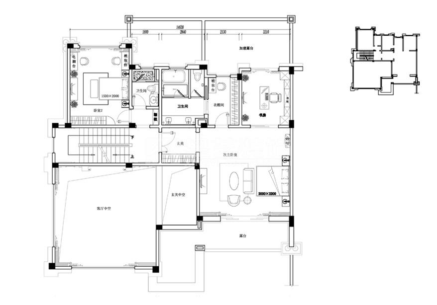
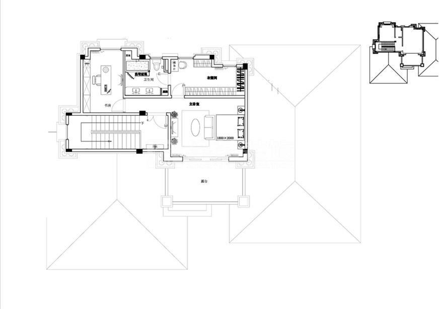
方案展示
設計說明
設計源于生活,生活高于設計。大多數人認為歐式風格最好體現,因為有很多的設計元素能夠拿來拼湊、使用。但其實不然,風格的本質并不存在于所謂的空間元素之中,而是存在于文化傳統(tǒng)、美學、歷史、氣候以及自然帶來的生活方式的轉變之中。
[展開]-
柳軍友的其它設計案例
-
歐式風格的其它設計案例
關注我們
分享到
微信

立即預約
在線咨詢
在線客服
公安部備案號 44010602004978號